PLAZA DE MINA, SU CASERÍO (1ª parte), CASAS núm. 2, 3 y 5, CÁDIZ
PLAZA DE MINA, SU CASERÍO (1ª parte), casas núm. 2, 3 y 5, CÁDIZ
Comienzo con esta entrada una serie en la que mostraré un recorrido por el caserío de la Plaza de Mina, en ella encontramos un conjunto de casas burguesas edificadas en el S. XIX muy interesantes. Un de ellas fue la casa natal del músico Manuel de Falla, en otra se instaló el estudio fotográfico de Reymundo, un establecimiento histórico de Cádiz, en el entonces incipiente desarrollo de la fotografía.
Como detalle, incluyo también un comentario de las 4 placas conmemorativas que se han colocado en sus fachadas.
Los textos
son la compilación de los hilos de post que subí a la red X (antes Twitter),
con el hashtag #DiariadeCádiz, los días: 05/09, 07/09 y 24/08/2022.
CASA
Nº2
#DiariadeCádiz La casa nº2 de la Plaza de Mina, es de estilo neoclásico, reformada en 1860 (queda como testigo parte de la cancela original, en un tabique reformado del patio). Responde a la tipología de casa burguesa unifamiliar, con 4 plantas diferenciadas en su fachada.
La fachada tiene 3 ejes compositivos, con vanos rectangulares
adintelados recercados; el vano central del entresuelo tiene una robusta reja
de forja; en el entresuelo y piso principal, los balcones tienen cierros de
madera. Las plantas altas se diferencian con impostas, más saliente la del
principal.
El patio central, tiene las galerías superiores apoyadas sobre vigas; la escalera es frontal y con solería de mármol, de cuatro tramos, a la que se accede entre dos columnas toscanas de mármol que soportan tres arcos de ½ punto, disposición que se repite en otras plantas del edificio.
En 1897, el fotógrafo estableció su vivienda familiar en la planta baja
y entresuelo. En la fachada se colocó una placa conmemorativa del centenario de
este establecimiento fotográfico. Señalemos la "curiosa, heterodoxa y
criticable la forma de datar el año", mezclando los caracteres romanos con los
arábigos.
CASA
Nº 3
#DiariadeCádiz La finca nº3 de la Plaza de Mina, se construyó en 1820, es de estilo neoclásico tardío, se trata de una casa de viviendas por plantas, muy reformada en la 2ª ½ del XX, de 4 plantas diferenciadas por cornisas. En planta baja su fachada es de piedra ostionera vista.
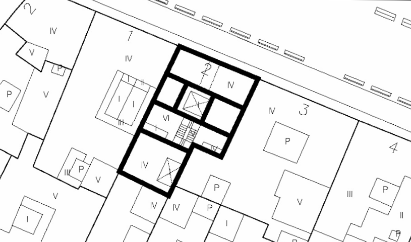
Planta casa nº 3, fuente PGOU Cádiz, op. cit. pág. 55
La portada principal situada en un lateral, es adintelada, con moldura
marmórea escasamente decorada, da acceso a la casapuerta rectangular, su
pavimento y el del patio es de mármol bicolor.
Los balcones se apoyan en canes de piedra, excepto centrales de la 2ª planta, que forman un saliente balcón corrido apoyado sobre ménsulas.
El patio es rectangular, tiene una columna toscana que soporta dos arcos, dando acceso a la escalera frontal tiene tres tramos por planta y pavimento de mármol y brocal octogonal de mármol. Las galerías superiores son mixtas de tres lados y montera a cuatro aguas.
En esta casa nació el 23/11/1876 D. Manuel de Falla, tiene 2 placas
conmemorativas en planta baja, la primera promovida por el Ayuntamiento en el
cincuentenario (1926) y otra en 2008, homenaje del Ateneo Literario, Artístico
y Científico de Cádiz, a su socio y ateneísta de honor.
CASA
Nº 5
#DiariadeCádiz La casa nº5 de esta plaza, fue construida en 1820, es de estilo neoclásico tardío, en la actualidad está convertida en viviendas por pisos. De 4 plantas separadas por cornisa, su lisa fachada está dividida en 3 ejes compositivos, con salientes en los balcones, con cierros de madera en las laterales y descubiertos en la central.
Planta casa nº 2, fuente PGOU Cádiz, op. cit. pág. 57
En su fachada, sobresale el gran balcón principal de la 2ª planta, más saliente que el resto de vanos apoyado sobre dos canes, está enmarcado por una moldura poco saliente y separada del vano, sobre el dintel otra moldura más saliente, un guardapolvo sobre canees con forma un frontón curvo de arco rebajado y tímpano liso rehundido.
La portada principal está centrada en la fachada, de arco rebajado, enmarcada por una chambrana marmórea de varias platabandas lisas (plana, cóncava y convexa) decorada con una cartela flanqueada con motivos vegetales a los lados del número del edificio.
Su patio cuadrado y la escalera se sitúa en su parte derecha, ambos de pavimento marmóreo. El patio está cubierto con una montera a 4 aguas. Dos columnas toscanas soportan el acceso, desde la escalera a la galería de la primera planta con arcos carpaneles. Las galerías del patio son abiertas, protegidas por barandillas de forja.
La casapuerta es rectangular, con zócalo bajo de mármol blanco, al fondo dos pares de columnas toscanas de mármol gris, que arrancan de un pedestal blanco, de la altura que el zócalo, sobre los capiteles un trozo de entablamento y encima un arco de ½ punto, enmarcado también en mármol.
La cancela de acceso al patio es de forja artística, realizada en 1884, con decoración de roleos, con un elemento fijo en el intradós de arco de ½ punto superior. Está dividida en 3 hojas, dos fijas laterales con roleos que enmarcan la central, móvil, donde los roleos siguen presentes en la parte baja.
En el lado frontal del patio, hay una portada de ½ punto, flanqueada por dos columnas de mármol gris, capitel toscano y pedestal, con una cancela de forja artística, con decoración semejante a la principal.
Sobre la
azotea, hay una torre mirador de planta cuadrangular, dos plantas y garita de
planta hexagonal.
Torre mirador, casa nº 5, Plaza de Mina, imagen tomada del PGOU Cádiz, op. cit. pág. 57
En la fachada hay una placa de mármol rectangular, conmemorativa de la reforma urbanística de la plaza, en 1897, realizada por el Ayuntamiento de Cádiz, presidido entonces por D. Benito Arroyo y Gil.
DOCUMENTACIÓN:
GAROFANO,
R.: La mirada de Reymundo sobre Cádiz, Quorum Libros Editores, 1998, Cádiz; págs..
23-33
JIMÉNEZ MATA,
J.J., MALO DE MOLINA J.: Guía de arquitectura de Cádiz, Consejería Obras
Públicas y Transportes, Junta de Andalucía, Colegio Oficial de Arquitectos de
Cádiz, Cádiz, 1995.
Plan
General de Ordenación Urbanística, Catálogo Protección Arquitectónica,
Ayuntamiento de Cádiz, Edificios Preferentes, volumen XII, Cádiz, 2010.
https://www.diariodecadiz.es/ocio/Cadiz-centro-permanente-dedicado-Falla_0_1522348213.html
2022.09.03 14:07
2022.09.03 14:10
https://www.lavozdigital.es/cadiz/201507/12/casas-ilustres-cadiz-20150711192321-pr.html
2022.09.03 14:12
Copyright Manuel Holgado García,
2025.04.14













Comentarios
Publicar un comentario